1205-1215 NW Portland Ave - Unit 9, Bend, OR 97703
1205-1215 NW Portland Ave - Unit 9, Bend, OR 97703
The Rapids on Portland / Fully Remodeled Townhomes / Sunny Private Deck with BBQ
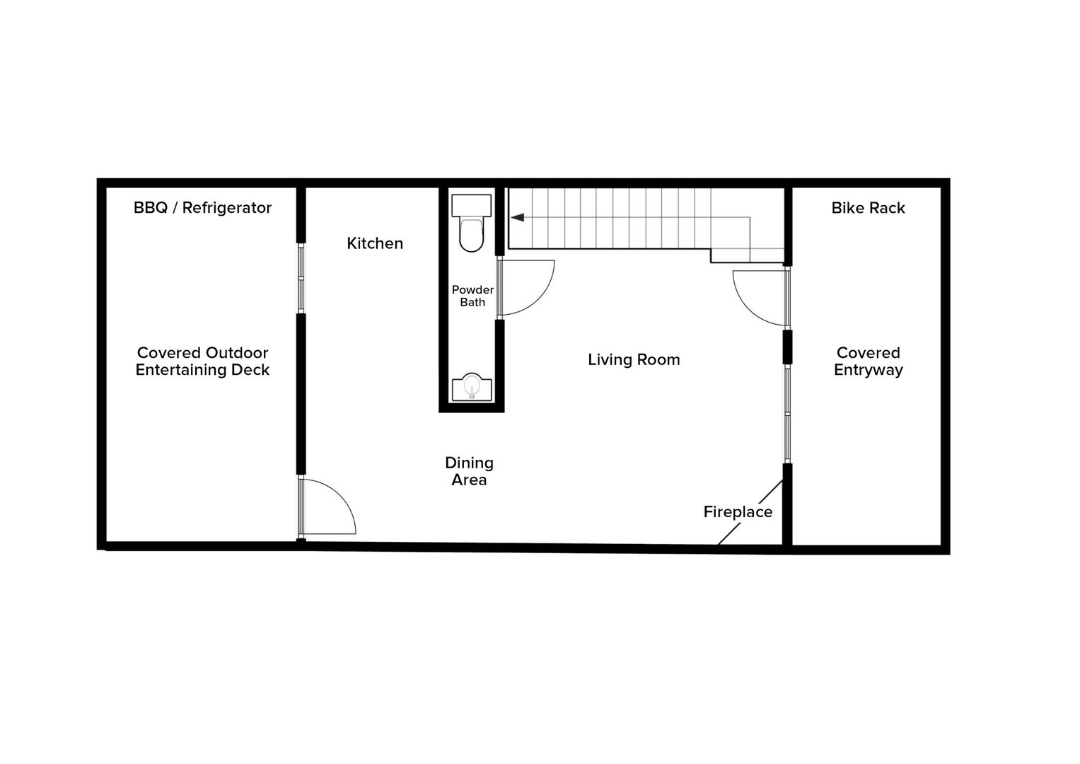
Welcome to The Rapids on Portland. This community consists of 16 townhomes that have recently undergone an extensive renovation of all interiors and building exteriors. The landscape and common areas are anticipated to be completed in August. Apply now to secure your townhome at The Rapids! All units are 2 Bedroom / 1.5 Bathroom 2-story townhomes of approximately 875 square feet with a large private covered rear patio with a built in gas BBQ, a beverage center as well as a fire pit for those chilly Bend evenings. Interiors include all gas appliances, a stacked washer/dryer, gas fireplace in the living room, built in dining area table, extensive countertop surface area in a fully appointed kitchen with new appliances. There is durable synthetic hardwood flooring throughout the entire unit and a mini-split air conditioning system for year round comfort. LED lighting throughout for efficiency. The bedrooms have built in dresser drawers in the closets and many additional cabinets built into the bedrooms, bathroom and living room. The photos are of Unit #6(previously a model unit), but all units have the same floor plan and finishes at completion of the renovation program.
These fully appointed townhomes are offered at a SPECIAL WINTER rental rate of $2395/mo(normally $2595) with a 13 month lease plus a fixed $75/month charge as a utility reimbursement for water, sewer and trash collection. The security deposit is the same as the rent and there is a $30 per person application fee which includes a criminal background check. Pets are allowed, with breed restrictions, at an additional cost of $75/month and a $500 additional pet deposit. Call or text Patrick for a showing 760.533.4602 To apply please visit www.doyleire.com/vacancies
**OPEN HOUSE FOR VIEWING INTERIOR OF UNIT FRIDAY FEBRUARY 20TH, SATURDAY 21ST AND SUNDAY 22ND BETWEEN 10:00AM-5PM. COME BY ANYTIME DURING THOSE HOURS AND TAKE A LOOK, DOOR WILL BE UNLOCKED/OPEN. CALL PATRICK 760.533.4602 IF YOU HAVE FURTHER QUESTIONS***
These fully appointed townhomes are offered at a SPECIAL WINTER rental rate of $2395/mo(normally $2595) with a 13 month lease plus a fixed $75/month charge as a utility reimbursement for water, sewer and trash collection. The security deposit is the same as the rent and there is a $30 per person application fee which includes a criminal background check. Pets are allowed, with breed restrictions, at an additional cost of $75/month and a $500 additional pet deposit. Call or text Patrick for a showing 760.533.4602 To apply please visit www.doyleire.com/vacancies
**OPEN HOUSE FOR VIEWING INTERIOR OF UNIT FRIDAY FEBRUARY 20TH, SATURDAY 21ST AND SUNDAY 22ND BETWEEN 10:00AM-5PM. COME BY ANYTIME DURING THOSE HOURS AND TAKE A LOOK, DOOR WILL BE UNLOCKED/OPEN. CALL PATRICK 760.533.4602 IF YOU HAVE FURTHER QUESTIONS***
Contact us:

























































